


- 產品概述
- 選型參數
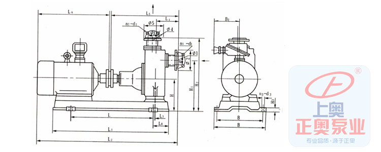
- 安裝尺寸
- 應用領域
- 型號意義
一、CYZ-A型自吸式自吸泵產品介紹:
CYZ-A型軸聯式自吸油泵該自吸泵適用于石油行業、陸地油庫、油罐車的理想產品,并適合于作船用貨油泵、艙底 泵、消防泵和壓載泵及機器冷卻水循環等,分別輸送汽油、煤油、柴油、航煤等石油產品和海水、清水,介質溫度-20℃-80℃,如輸送化工液體可改用耐腐蝕 機械密封。
二、CYZ-A型自吸式自吸泵產品特點:
1、該自吸泵屬自吸式自吸泵,它具有結構簡單、操作方便、運行平穩、維護容易、效率高、壽命長,具有較強的自吸能力等優點。管路中不需底閥,工作前只需保證泵體內儲有定量引油即可。用于油輪或輸水船舶上時,可兼作掃艙泵,掃艙效果良好,
2、該泵是選用優質材料精制而成,密封采用硬質合金機械密封,經久耐用,吐出管路不需要安裝安全閥,吸入管路不需安裝底閥,因此簡化了管路系統,又改善了勞動條件。
CYZ-A型自吸式離心油泵適用于石油行業、陸地油庫、油罐車的理想產品,并適合于作船用貨油泵、艙底泵、消防泵和壓載泵及機器冷卻水循環等,分別輸送汽油、煤油、柴油、航煤等石油產品和海水、清水,介質溫度-20℃~140℃,如輸送化工液體可改用耐腐蝕機械密封。

四、CYZ-A型自吸式自吸泵安裝說明:
1、在油泵與電動機直聯傳動時,應注意泵軸與電動機輸出的同軸度;泵安裝的準確與否對泵的運行平穩性和使用壽命有較大的影響,因此必須仔細認真地安裝和校正。
2、泵聯軸器必須用螺母緊固好,并鎖緊螺母,謹防螺母松動,否則易引起葉輪竄動,造成機械故障。
3、為使泵體內能夠保持一定的儲存液,以達到較好的自吸能力和防止機械密封的干磨擦,必須使泵的進口高于泵軸中心線。
4、吸人管路的安裝應注意:
A.吸人口的安裝高度盡量不超過5米,在條件許可時,吸人口的安裝高度應盡可能地低于油庫最低儲油面,并盡量縮短吸人管的長度,少裝彎頭,這樣有利于縮短自吸時間,提高掃艙功能。
B.吸人管路中的閥門、法蘭等應嚴防漏氣或滲漏液體,即吸人管路不允許有漏氣現象存在。
C.應防止泵體內吸人固體等雜物,為此吸人管路上應設置過濾器。過濾器的有效過流面積應為吸人管截面的2-3倍,過濾器應定期檢查。
D.吸人管路和吐出管路應有自己的支架,泵體本身不允許承受管路的負荷。
5、油泵在安裝時,應使泵及管路的靜電接地電阻達到其規定要求。
6、安裝時應嚴格檢查泵殼及管路中有無石塊,鐵砂等雜物。
7、校正泵聯軸器及電機動聯軸器的安裝間隙及同軸度,其不同軸度允許偏差為0.1毫米。泵軸和電動機軸的高度差可在底腳上墊銅皮或鐵皮調整。
8、在機組實際運轉3-4小時后,作最后檢查,如無不良現象,則認為安裝已妥,在試運轉中應檢查軸承的溫度,軸承體的溫度不宜超過70度。
9、該泵軸承體凡設有冷卻室裝置的冷卻水接頭供配內孔為移1 2的膠管或塑料管之用,其螺紋尺寸為M1 2×175。
1 0、在泵的出口管路上如裝有單向閥而在自吸過程中不能使泵順利地排出氣體時,應在泵的出口處加接排氣小管及閥。
五、CYZ-A型自吸式自吸泵拆裝維修:
該泵的特點是結構簡單可靠,經久耐用。在泵正常情況下,一般不需要經常拆開保養。當發現故障后隨時給予排除即可。
1.維護該泵時應注意幾個主要部位。
A.滾動軸承:當油泵長期運行后,軸承磨損到一定程度時,須進行更換。
B.前密封環、后密封環:當密封環磨損到一定程度時,須進行更換。
C. 機械密封:機械密封在不漏油的情況下,一般不應拆開檢查。若軸承體下端泄漏口處產生嚴重泄漏時,則應對機械密封進行拆檢。裝拆機械密封時,必須輕取輕放, 注意配合面的清潔,保護好靜環和動環的鏡面,嚴禁敲擊碰撞。因機械密封而產生泄漏的原因主要是摩擦付鏡面拉毛所至。其修復辦法,可對磨擦付端面進行研磨使 恢復鏡面。機械密封產生泄漏的另一原因是“o”形橡膠密封圈(或緩沖墊)安裝不當、或者變形老化所至。此時則需調整或更換“O”形密封圈進行重新裝配。
2.油泵拆裝順序:
A.拆下電動機或脫出聯軸器。
B.拆出軸承體總成,檢查葉輪和前口環的徑向間隙,檢查葉輪螺母有無松動。
C.拆下葉輪螺母,拉出葉輪,檢查葉輪和后密封環的徑向間隙。
D.松出機械密封的緊定螺釘,拉出機械密封的動環部分,檢查動、靜環端面的貼合情況,檢查“o”形密封圈(或緩
沖墊)的密封情況。
E.旋出聯軸器的緊定螺母,拉出聯軸器。
F.拆下軸承端蓋,拆出泵軸和軸承。
G.安裝時以相反順序進行裝配即可。
六、CYZ-A型自吸式自吸泵性能型譜圖:


八、CYZ-A型自吸式自吸泵參數選型:


- 上一個產品: JMZ型不銹鋼自吸泵|酒泵
- 下一個產品: CYZ-AL型直聯式自吸油泵